6+ Plumbing Stack Diagram
Metro Rod Don T Let Drain Problems Stack Up In London Metro Rod

Plumbing Vent Toilet Drain Plumbing
Plumbing Vents The Ultimate Guide Hammerpedia
Section 10 16 Vents And Venting 248 Mass Reg 10 16 Casetext Search Citator
Plumbing Vents The Ultimate Guide Hammerpedia
Solution A Pile Of Water Pipes Is Stacked With 4 Along Bottom Then 3 The 2 Then 1 From The Side It Looks Like A Pyramid If The Diameter Of Each Pipe
Water Free Full Text Catalytic Partial Desalination Of Saline Water
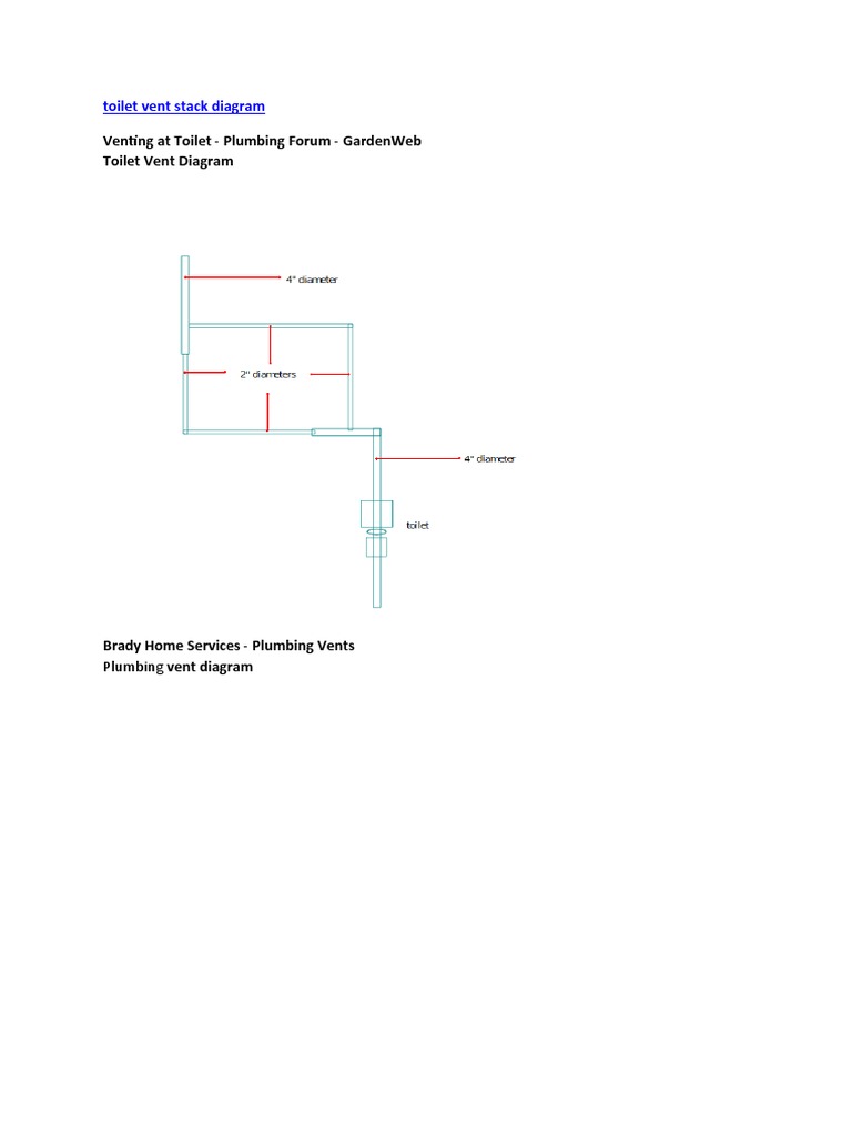
Toilet Vent Stack Diagram Pdf Toilet Hydraulics
Drain Pipes And Vent Stacks
How To Properly Vent Your Pipes Plumbing Vent Diagram
Bathroom Plumbing Supply Drainage Systems Part 2
Your Home S Sewer Stack A Balkan Drain Team Plumbing Guide Video Balkan Drain Cleaning
Plumbing Vents The Ultimate Guide Hammerpedia
Floor Drain In Laundry Room Closet R Plumbing
Roughing In Drain Waste Vent Pipes Fine Homebuilding
Section 10 16 Vents And Venting 248 Mass Reg 10 16 Casetext Search Citator
Oatey Oatey 39225 8 Stack Dfu Capacity White Tubular Adapter Air Admittance Valve 1 5 In 20 Branch Faucet Aerators And Adapters Amazon Com
Layout And Completion Of Vertical Plumbing Stack Episode 12 Youtube